【予算1,000万】築47年・45㎡・1LDKをワンルームに再設計 50代夫婦が叶えた“寝室をつくらない”終の住まい

築47年・45㎡・1LDKのマンションを、50代ご夫婦の“終の住まい”としてワンルームへ再設計したリノベーション事例です。

今回の住まいづくりで大切にしたのは、単に部屋数を確保することではなく、自分たちの好きなものに囲まれて、無理なく心地よく暮らせること。
“寝室をつくらない”という考え方を取り入れながら、キッチンを主役にした空間設計、大容量の壁面収納、洗面室の新設、断熱性能の見直しまで行い、夫婦2人の暮らしにフィットする住まいへと整えました。

「広さ」や「一般的な間取り」にとらわれず、今の暮らし方に合った住まいを形にしたい方にとって、たくさんのヒントが詰まった事例です。

この事例の見どころ

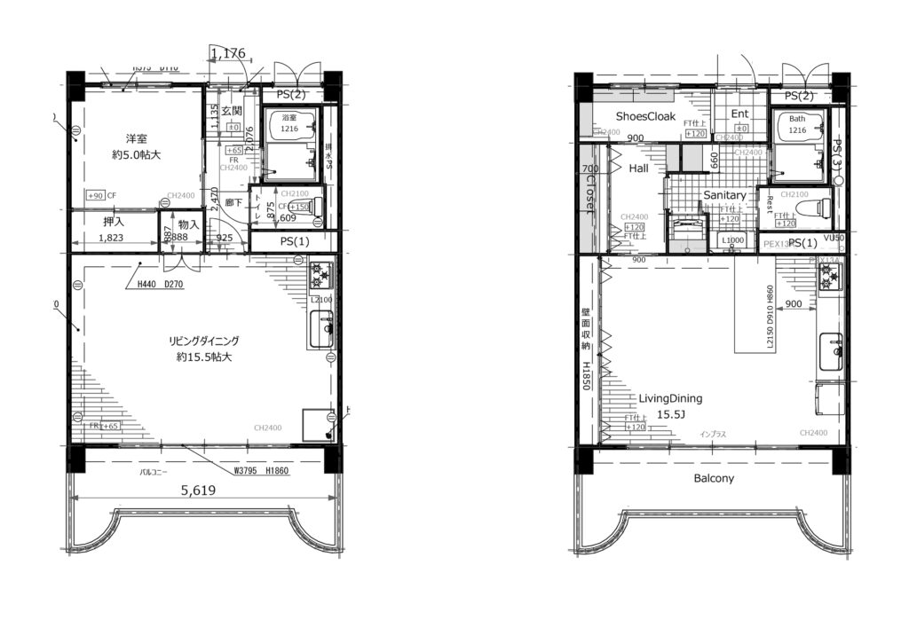
  • 築47年・45㎡・1LDKをワンルームへ再設計
  • “寝室をつくらない”という考え方で暮らしを最適化
  • グラフテクトのキッチンを主役にした空間づくり
  • 壁面収納+布団収納でモノを見せない暮らしを実現
  • 洗面室を新設し、水回り動線を再構築
  • 断熱施工+インプラス(二重窓)で快適性も向上
  • L45対応の床へやり替え、バリアフリーにも配慮

1:物件概要

  • 築47年
  • 45㎡
  • 既存間取り:1LDK
  • リノベーション後:ワンルーム
  • 家族構成:50代ご夫婦
  • 工事内容:フルリノベーションに近い再構築
  • 総費用:約1,100万円
  • 浴室・トイレは既存活用
  • 床はL45対応のため全面やり替え
  • 断熱施工+インプラス(二重窓)を採用

2:お客様の家族構成と購入・居住背景

今回のお客様は、50代のご夫婦です。
リフォーム済みの中古マンションを購入され、その後、ご自身たちの暮らし方に合わせて再度リノベーションを行いました。

今回の住まいに求められていたのは、部屋数の多さや一般的な間取りではなく、これからの暮らしに本当に合う住まい方です。
夫婦2人で無理なく暮らせること、好きなものだけに囲まれて過ごせること、そして将来も見据えながら心地よく住み続けられること。そうした価値観をベースに、住まい全体を見直していきました。

3:リノベ前の不満や課題

既存の住まいには、暮らし方に対していくつかのギャップがありました。

もともと1LDKの間取りではあったものの、部屋が分かれていることが必ずしもご夫婦の暮らしに合っていたわけではなく、空間をもっと自由に、もっと広く使いたいという想いがありました。

また、リフォーム済み物件ではあったものの、「販売のために整えられている」印象が強く、実際に住む人の目線では気になる点も残っていました。

主な課題は以下の通りです。

  • 1LDKの間取りが、現在の夫婦2人の暮らし方に最適化されていない
  • リビング収納が少なく、モノが外に出やすい
  • 玄関を入ってすぐ浴室・トイレがあり、洗面スペースがない
  • 洗濯機の位置も含めて、水回りまわりに生活感が出やすい
  • 築47年当時の単板ガラス+アルミサッシで、断熱性や結露面に不安がある
  • 床はL45の防音仕様を満たしておらず、やり替えが必要だった

4:今回の設計テーマ

今回の設計テーマは、
“寝室をつくらない”という考え方で、夫婦2人の暮らしをワンルームで成立させることです。

一般的には、寝る場所・食事をする場所・くつろぐ場所を分けて考えがちですが、今回はご夫婦の価値観や日々の過ごし方を丁寧に伺った結果、空間を分けるよりも、ひとつながりの空間として整えた方が暮らしやすいという結論になりました。

その上で大切にしたのは、

  • 無駄なものを置かないこと
  • 好きなものだけに囲まれること
  • モノや設備の“ノイズ”を減らすこと
  • 夫婦2人の動線を短く、シンプルに整えること

という考え方です。

5:間取り変更のポイント

1LDKをワンルームへ再構成

今回の一番大きな変化は、1LDKをワンルームへ変更したことです。
寝室を独立させるのではなく、布団を使う暮らしを前提に、日中は広く、夜は必要に応じて寝る場所として使える空間に再構成しています。

キッチンを空間の主役に

今回の住まいでは、キッチンが単なる設備ではなく、暮らしの中心です。
食事をする場所、作業をする場所、日々の時間を過ごす場所として、キッチンと収納兼調理カウンターを中心に据えたレイアウトになっています。

玄関・ホール・洗面の再構成

既存の5帖洋室を使い、玄関・ホール・洗面室を新たに整えました。
これにより、もともと不足していた洗面スペースを確保するとともに、玄関からの見え方や動線も大きく改善しています。

浴室・トイレは既存活用

水回りのすべてを交換するのではなく、浴室・トイレは既存を活かす判断をしています。
使えるものは活かし、必要な部分にしっかり予算を配分していく考え方です。

6:収納計画のポイント

今回の住まいでは、収納計画が暮らしやすさを支える大きな柱になっています。

壁面収納を大容量で計画

もともとリビングに十分な収納がなく、生活用品が外に出やすい状態でした。
そこで、壁一面を収納にすることで、日常のモノをまとめてしまえるようにしています。

布団収納を前提にした奥行き計画

“寝室をつくらない”暮らしを成立させるため、布団をしっかり収納できるよう、1ヶ所だけ奥行きを深く取った収納を計画。
日中は空間を広く保ちながら、就寝時だけ布団を出すスタイルを支えています。

衣類・日用品もまとめて収納

衣類や雑多な生活用品も壁面収納の中へ。
モノを表に出さないことで、空間そのものの美しさと落ち着きを保ちやすくしています。

7:採用設備とその理由

今回の設備選びは、見た目のデザインだけでなく、暮らし方との相性を重視して行われています。

キッチン:グラフテクト

今回の住まいの主役となるキッチンです。
重厚感のあるデザインと、天板・キャビネットの一体感が空間全体の印象を決めています。
扉柄はメルクリオを採用しています。

食洗機:Bosch フロントオープンタイプ

大容量で、1日の食器類をまとめて洗いやすいタイプを採用。
静音性にも優れ、夜間使用も想定しやすい点が魅力です。

コンロ:ハーマン 3口ガラストップコンロ

見た目をすっきりさせながら、日常使いのしやすさも考えた選定です。

水栓:黒色のタッチレス水栓

空間全体のトーンに合わせて黒を採用。
ストレートとシャワーの切り替えが可能です。

洗面:ミラタップ「プレーンVアップライト」

75cmサイズの洗面台に、60cmの一面鏡収納を組み合わせています。
バックガードが立ち上がった形状で、水はねが気になりにくい点も採用理由のひとつです。

フットスイッチ:TOTO

洗面の水栓は、足元でオン・オフできるフットスイッチを採用。
タッチレスとは異なる快適性と使い勝手を重視しています。

スイッチ・コンセント:Panasonic

  • リビング:Sプレート
  • 洗面まわり:SO-STYLE

空間のノイズを減らすため、コンセントの位置や見え方にも配慮しています。

内窓:インプラス(二重窓)

築47年の単板ガラスサッシに対して、断熱性・結露対策・防音性向上を目的に採用しています。

8:暮らしやすさにつながる工夫

キッチン兼ダイニングの考え方

別でダイニングテーブルを置くのではなく、収納兼調理カウンターを食事の場として使う前提にしています。
45㎡という広さの中で、暮らしに必要な機能を集約する考え方です。

可動式テレビ台に対応したジャック計画

テレビの位置を固定せず、暮らしのシーンに応じて動かせるよう、2ヶ所にテレビジャックを設置。
就寝時や日中の過ごし方に合わせて位置を変えられるようにしています。

間接照明+グレアレスダウンライト

“煌々と明るい空間”ではなく、柔らかい光の中で暮らすことを重視。
必要な場所だけにグレアレスダウンライトを使い、空間全体の雰囲気を整えています。

コンセントの高さまで見直し

コンセントは床から約10cmの高さに設定。
グリーンや家具に隠れやすく、視線に入りにくいため、空間全体をすっきり見せる工夫になっています。

建具を天井いっぱいまでオーダー

建具や収納扉は天井目一杯まで上げることで、ノイズを減らし、空間をよりすっきり見せています。

9:断熱・性能面で見直したこと

今回のリノベーションでは、見た目のデザインだけでなく、住まいの性能面も丁寧に見直しています。

L45対応の床へ全面やり替え

既存の床は防音性能が確保されていない状態だったため、マンションの仕様に合わせてL45対応の床へ全面やり替え。
あわせて、空間全体をバリアフリーになるよう高さも整えています。

外壁面の断熱施工

築47年のマンションということもあり、断熱面の弱さが課題でした。
外壁面に対して断熱を行い、住み心地の改善を図っています。

インプラス(二重窓)の採用

既存の窓は薄い単板ガラスのアルミサッシで、結露や熱の逃げやすさが課題でした。
内窓を追加することで、断熱性・防音性・快適性を高めています。

10:こんな方に参考になる事例です

この事例は、特に以下のような方に参考になります。

  • 50代以降の夫婦2人暮らしの住まいを考えている方
  • 子どもが独立した後の住まいを見直したい方
  • 広さよりも、暮らし方に合う間取りを重視したい方
  • ワンルーム的な暮らし方に興味がある方
  • キッチンを住まいの主役にしたい方
  • 収納で空間をすっきり整えたい方
  • 断熱や防音など性能面も含めて見直したい方

「部屋数は多い方がいい」「寝室は独立している方がいい」といった固定観念にとらわれず、自分たちにとって心地いい住まいの形を考えたい方にとって、とても参考になる事例です。

11:この施工事例の費用感

今回のリノベーション費用は、総額約1,100万円です。

この費用には、

  • 間取り変更
  • キッチンの入れ替え
  • 壁面収納の造作
  • 洗面室の新設
  • 床の全面やり替え(L45対応)
  • 断熱施工
  • インプラス(二重窓)

などが含まれています。

一方で、浴室やトイレは既存を活かすことで、予算配分のバランスを取っています。
「すべてを新しくする」のではなく、使えるものは活かしながら、暮らしの満足度が上がる部分にしっかり予算をかけるという考え方が、この事例の特徴です。


12:ルームツアー動画はこちら

実際の空間の広がり方や、キッチン・収納・洗面・玄関まわりの見え方は、動画でご覧いただくとより分かりやすく伝わります。

1LDKをワンルームへ再設計した住まいが、どのように成立しているのか。
ぜひルームツアー動画でもご覧ください。

▼ルームツアー動画はこちら

  • コメント ( 0 )

  • トラックバックは利用できません。

  1. この記事へのコメントはありません。

関連記事一覧

公式LINE 登録